株洲千思家装;每个人对于新家的期待值,在没有前是爆棚的,在装修中却是逐渐被降低的。实在是因为装修这件事,太过繁琐,作为装修新手想要插手,却又太过困难。打拼了大半辈子也就为了这么一套3室1厅的房子,不装修好,那怎么说的过去呢?本期的装修设计,带来去看看那些随处可见温馨舒适的设计!
【装修设计】家装3室1厅装修效果图 家就应该是随处可见温馨舒适
一、家装3室1厅装修效果图——89㎡三室一厅,全屋收纳太实用了
屋主需求:
1. 需要一个大大鞋帽柜。
2. 需要大大的书柜。
3. 有一架钢琴需要考虑进去。
4. 增加更多的储物空间。

改造重点
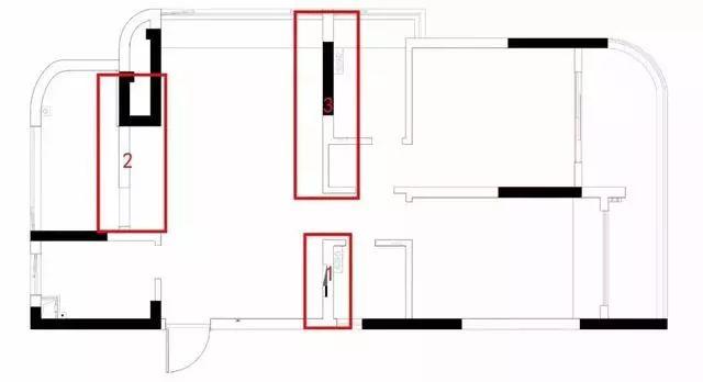
1. 将原先过道的墙体上移,缩小客厅的长度,增加一排鞋帽柜及餐厅柜。
2. 墙体外移,增大书房空间面积。
3. 在主卧室的空间,增加书柜、清洁柜以及零食柜。

收纳分析
收纳说明:
1. 厨房由原先的L型,变成U型厨房,增加操作台面,动线也更加舒适。调整厨房与书房之间非承重墙的位置,完美塞下多门冰箱。
2. 书房保留卧室+休闲的功能,采用榻榻米形式。
3. 入户右手边增加一排鞋帽柜,不仅能收纳多双鞋子,同时满足换鞋凳、挂衣、照镜子、抽屉等各种需求。
4. 客厅沙发后面布置了书柜,同时将柜体延伸至飘窗,增加零食柜空间。
5. 在家中动线中心点的位置设置清洁柜。屋主自购洞洞板,将扫地机器人,吸尘器等清洁家电及家中辅助工具一起存储。减少清洁动线,让家务变轻松。
6. 调整主卧次卧中间的非承重隔墙,增加一大排衣柜收纳空间。
7. 主卫浴室柜较小。利用边上壁龛位置预留好插座,放置剃须刀和充电牙刷等物。客卫空间预留好位置和插座,满足放面膜冰箱的特殊需求。
SU模型图

玄关餐厅

模型图

女主人有很多鞋,还考虑将来小孩子的鞋也比较多,就有了一个大鞋柜的需求。
在设计鞋柜的时候增加了抽屉功能,护手霜、剪刀、鞋油、抹布等等小东西分类存放,收纳so easy !
开放式的换鞋凳,方便放置常用鞋子,空闲的地方在放置一个体重秤,简直不要太完美!

墙面的挂钩可以挂一些衣服和包包。因为屋主不怎么使用可视,又觉得在墙面上有些突兀,就利用挂毯遮挡,美观大方!

整体空间格局上更加适合圆桌,屋主比较好客,经常有客人拜访,圆桌更加方便增加位置招待客人,一群人围在一起吃火锅超级有氛围!大理石桌面的圆桌搭配着粉色丝绒餐椅不经意间流露出了轻奢的氛围。

小书房的门洞是特意留成1.4m宽的,与客餐厅融为一体,使整个空间光线更加通透、南北通风效果更好。并且顶上预留门帘位置满足不同的使用需求。

餐边柜可以放一些餐厅的随手物品,提前预留了插座将来买了豆浆机、面包机、咖啡机可以放在这里,满足一个简单的早餐制作需求。

屋主不喜欢跑来跑去拿清洁工具打扫,设计师就在房屋中心位置设计了一个清洁工具的收纳柜。

收纳柜借用了一点主卧过道的空间,做成了50*50公分到顶式。提前预留插座,后期屋主定制了洞洞板,将家里的小家电和其他工具都放在这里了!

收纳柜下方,预留了20公分的空间放置扫地机器人,方便扫地机器人打扫卫生之后自动归位。
客厅

丝绒的沙发呼应着地毯,整体感更强。而金色的抱枕提亮了整个空间,整个空间有互动,更加和谐不突兀。


有一句话说得好:“好学的人爱看书,而爱看书的人必须有一个自己的书柜”。
设计师提出把书柜放在沙发后面的时候屋主比较担心会离电视太近。当屋主入住体验之后才发现根本不需要担心!
因为大多数的时间,他们都是躺着或者坐着,在客厅地毯上享受阳光带来的美好。

周末闲暇时间,躺在客厅里与最爱的人一起看着自己最爱的藏书,享受美好的慢节奏生活。真好!

屋主有时会变动沙发的位置,形成一个对坐的模式,更方便互动。

因为屋主很好客,聚餐之后,三五好友围成圈可以打牌玩耍。
书房

书房有一整面的收纳柜,收纳布局是设计师首先考虑的问题,出发点是让收纳变的更合理、巧妙实用、美观。


关于这个小书房,设计师和屋主沟通交流了很久,考虑到男主人的工作需要一个书桌,最后设计成一半的榻榻米一半办公区。
预留好了窗帘和移门的位置,满足屋主将来的需求,开放与私密两不误。

闲暇时间,男主人会坐在榻榻米上一边喝着茶一边看书,女主人会刷着微博开怀大笑,与男主人分享她觉得有趣的东西。
厨房

水槽台下盆美观简洁、方便清洁卫生,台面积水可以很顺畅的流到底盆里,不会积累细菌。

厨房把冰箱的后面的非承重墙,往里移动了几公分,塞下了双门冰箱。
同时橱柜采用隐形拉手,因为担心做饭被刮伤啊之类的,吊柜下面也增加了感应灯。


从厨房的细节来看,充分说明了屋主是一位热爱做收纳的生活家!厨房用具收拾的井井有条,非常有条理性!

水槽上方的小吊灯
生活就是和爱的人一起讨论着未来,也享受这现在的柴米油盐酱醋茶和酸甜苦辣!
主卧


可以调节角度的个性灯饰,实用且富有个性。胡桃木床边柜、强化地板铺贴、海军蓝的背景墙,一切的软装都配合的那么默契,自然而然流露出精致的生活气质。


这架钢琴是从小陪伴着女主人长大的,因此在做设计定稿之前,女主人再三强调一定要有一个能放钢琴的位置。
钢琴是专门从洛阳运过来的,到家的那一刻女业主非常激动:“从小一直陪伴长大的,现在又可以天天看见她了!”

放假休息时间,女主人弹了一曲《梦中的婚礼》,男主在一旁看的书。优美的钢琴曲,仿佛诉说着他们的爱情。谁也不愿意打破这甜蜜的二人时光。

突然初秋的风吹了过来,男主人体贴的拿起从一旁衣架上的外套披在了女主人肩上,唠叨着别感冒了。
主卫

主卫的淋浴是把原来的飘窗敲掉扩展出来的,很好的提高了主卫的通风情况。考虑到两个卫生间想体验不同的感觉。于是用了六角砖铺贴,美观又时尚。
地垫选用的是硅藻土地垫,吸水性超强!不在担心卫生间再湿哒哒的了。屋主超级喜欢!

壁龛的设计,更好地收纳了剃须刀、电动牙刷等生活用品,在侧面预留了插座位置,方便使用。
次卧


次卧室,女主人有个少女心,粉色的梦,墙面上用的是淡淡粉色的乳胶漆,搭配着金色床和粉色床上用品,仿佛进入了一个梦幻的世界。屋主不想将就!宁愿一点一点购买自己喜欢的东西,也不愿意回到家里有不舒服的感觉。
次卫

关于面膜冰箱,设计师和屋主经过沟通,最后决定放在客卫的浴室柜里面,提前预留好了插座,这样屋主就可以放心大胆的买买买囤囤囤啦~

台上盆造型美观、简洁大方、使用方便且占用面积小,同时考虑到有客人短住洗漱不方便,保留了淋浴。
二、家装3室1厅装修效果图——145㎡三室一厅 尽显绝美的简约意境
极简主义是现在越来越多人所推崇的生活方式。减少不必要的设计,不仅可以让家居看起来整洁、干净,同时也是对生活、对人生的一种态度。
在客厅中,绿色植物为静谧的空间增添了一抹绿意,白色的沙发与黑色的橱柜形成鲜明的对比,让空间极具视觉冲击力。



原木色的墙面,与地板的色调一致,整体感极强。黑色的橱柜与客厅的白色基调形成鲜明对比,在大面积白墙的衬托下,展现出一丝静谧的禅意。


为了让主人能够静下心来读书、工作,书房整体选用平和的灰色与原木色调,顶部造型独特的吊灯,凸显出优雅的艺术气息。


纯白的卧室,去除了生活中的繁杂,墙面石膏板雕花设计,为极简的空间带来优雅的情调。




卫浴间搭配整面墙的模拟花卉,给人一种亲临大自然的感觉。




在充满爱与梦幻的房子里,孩子耳濡目染的美感,是给予他们最好启蒙。设计师采用柔和的蓝、灰色调,搭配墙面的树木造型,云朵的灯饰,绵羊的挂饰,给孩子营造出一个关于美的故事。